2026.03.15

マイホームの間取り作成の際に、お子さまが成長・独立していくことを考えると、子ども部屋の配置・面積・部屋のレイアウトを決定するのが難しいですよね。
今回は多くのご家族のマイホームづくりをサポートしてきた栃木の工務店『第一住宅』が、子ども部屋の最適解を見つけた間取り事例をご紹介します。
お子さまの成長とご家族の円滑なコミュニケーションを支える家づくりを成功させるために、ぜひ最後までご覧ください。
栃木でご家族のライフスタイルにマッチする家づくり・間取りを検討中の方は、第一住宅へお問い合わせください。



目次

子ども部屋の配置パターンは以下のとおりで、各パターンのメリット・デメリットは、以下のとおりです。
| メリット | デメリット |
|---|---|
| リビング近く・リビング直結 | |
| ・お子さまの様子を把握しやすく、コミュニケーションも取りやすい ・(リビング直結の場合)廊下を削減して個室の面積を広くできる ・低学年時のリビング学習から個室利用への移行がスムーズ | ・テレビや家事の音が室内まで届きやすい ・来客時にプライベートな室内が視界に入りやすい ・思春期にプライバシーを完全に確保するのが難しい |
| 主寝室の近く | |
| ・夜泣き・体調不良などの対応がスムーズ ・空調を共有すると、夜間の光熱費を抑制できる ・親子の物理的距離が近いため、お子さまが安心して自室で過ごせる | ・ご夫婦のプライバシー確保が難しく、深夜の会話・早朝のアラーム音が子ども部屋に響く ・ご夫婦とお子さまの生活時間帯がズレる場合に、生活音がお互いのストレスになる |
| 主寝室・子ども部屋を離す ・収納を挟む ・フロア分離 | |
| ・ご夫婦・お子さまがお互いに生活音を気にせず過ごせる ・ご夫婦・お子さまともにプライバーを確保しやすい ・フロアを分離する場合、老後に1階で生活を完結させる間取りが可能 | 大きなデメリットはなし。 お子さまの様子を把握しづらくなるが、リビング近くに子ども部屋を配置するなどでデメリットを解消できる。 |
子ども部屋の配置に対する価値観はご家庭によって異なりますが、お子さまが自立した生活をし始める小学校高学年以降に、ご家族それぞれがのびのびと過ごせる子ども配置の検討をおすすめします。

次に、子ども部屋の配置実例をご紹介します。
1人部屋の実例・2人1部屋の実例をご確認ください。
こちらは「屋・4LDK」の間取り実例で、子ども部屋は「リビング直結」「トイレを挟んで主寝室と子ども部屋を離す」という配置です。

こちらは「2階建て・4LDK」の間取り実例で、2階に個室を集約し、階段を挟んで主寝室・子ども部屋を配置しています。

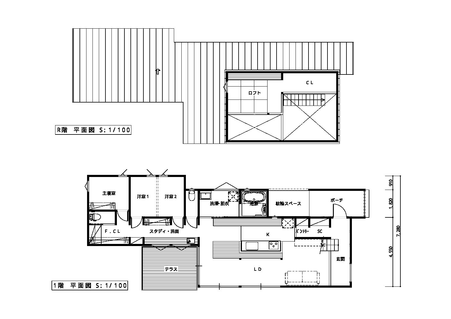
こちらは「平屋・2LDK+ロフト」の間取り実例で、主寝室と子ども部屋を隣接させて配置しています。
子ども部屋は将来壁で仕切ることで4.5畳ほどのコンパクトなスペースとなりますが、ファミリークローゼット・スタディスペースを近くに配置しているため、無駄無く空間を使い分け可能な間取りとなりました。

上記の住宅は、ロフトに固定階段を設置している点も特徴です。
こちらの記事で、平屋にロフトを取り入れた間取りをご確認いただけます。
〈関連コラム〉平屋+ロフトの家|固定階段の設置ルールと後悔しないための間取りポイント、おしゃれな事例を解説
こちらは2階建て・2LDKの間取り実例で、主寝室・子ども部屋のフロアを分離して配置しています。
子ども部屋は、収納を仕切りにして空間を緩やかに分ける「セミオープン」の間取りです。

栃木の第一住宅には多数の施工事例がございますので、ぜひごらんください。
新築時に「1人1部屋or2人1部屋」を迷う場合には、上記のような「将来間仕切りが可能な状態」にしておくことが可能です。
将来部屋を2つに分けることを考えて、設計に以下のような工夫を取り入れましょう。

子ども部屋の間取り配置を確認してきましたが、子ども部屋が意外とコンパクトだと感じた方が多いのではないでしょうか。
住宅面積は年々コンパクト化していて、自動的に子ども部屋もコンパクトになる傾向があります。
次に、子ども部屋に必要な広さ・レイアウト実例もご紹介するので、参考にしていただけると幸いです。
子ども部屋に必要な広さは、1人につき最低3畳〜(収納除く)が目安です。
【3畳の子ども部屋】
3畳の子ども部屋は、以下の家具を置いて「通路+多少の余剰スペース」が生まれる広さです。
「3畳+クローゼット」or「3畳+壁や縦の空間を活用した造作収納」で、物の収納場所を確保しましょう。
| 家具など | サイズ |
|---|---|
| ベッド | 最低幅85×縦190cm〜 (セミシングルサイズ) |
| 勉強机 | 最低幅80cm×奥行き60cm〜 |
【4.5畳以上の子ども部屋】
4.5畳以上の広さを確保できる場合には、シングルサイズのベッドを置くことが可能です。
また、3畳の子ども部屋は1人が過ごすための広さですが、4.5畳以上の場合は友人を招いて過ごすこともできるようになります。
こちらは縦長・4畳ほどの子ども部屋で、一直線の通路を確保して家具などをレイアウトしています。
2箇所の高窓の方へ視線が抜けるため、コンパクトでありながら開放感のある子ども部屋となりました。

こちらの子ども部屋は、ロフトベッドを置いて空間を有効活用しています。

子ども部屋のベッド近くに窓を設置する場合、お子さまが冷気を感じない室内環境づくりのために、高気密高断熱の窓を選択する必要があります。
こちらの記事で、気密性の高い家づくりの方法をご確認いただけます。
〈関連コラム〉気密性の高い家のデメリット解消には断熱性・換気性が必須|ハウスメーカー選び、高気密のメリットも解説
こちらは将来間仕切りをして子ども部屋をつくれるように空間を確保した実例です。
現在はお子さまが遊べるオープンなスペースですが、窓・コンセント・照明など、個室化に必要な設備が整っています。

「リビング内にスタディスペースとなるカウンターを設置」「2階ホールを広くしてフリースペースにするなど」、お子さまが子ども部屋だけで過ごさないことを前提にした間取りバリエーションがたくさんあります。
ご家族のライフスタイルに応じて、柔軟にスペースを有効活用できる間取りを作成していただけると幸いです。
栃木で豊富な間取りアイデアを持つ工務店をお探しの方は、第一住宅へお問い合わせください。
ご予算を考慮しながら、ご家族がのびのびと過ごせる間取りプランを提案いたします。




次に、子ども部屋の配置を考える際に見落としがちな、「必要な収納容量」も具体的にご紹介します。
お子さまの成長に伴って物の量が増える&衣服サイズなどが大きくなるため、小学生から高校生までに必要な収納容量の確保が大切です。
男の子の持ち物のサイズ・量が大きく変化するのは小学校高学年〜中学入学ころです。
年代に応じた持ち物を一覧表にまとめたので、収納容量確保の参考にしてください。
| 年代 | 持ち物 |
|---|---|
| 小学校低学年(6〜9歳) | ・衣服:幅60cm程度 ・学習関連:ランドセル置き場 ・習い事の道具・おもちゃなど:棚4〜5段 |
| 小学校高学年(10〜12歳) | ・衣服:幅75cm程度 ・学習関連:教科書・参考書が増加によって本棚追加 ・習い事や部活道具:棚4〜5段×2 |
| 中学生(13〜15歳) | ・衣服:幅90cmで高さも必要 ・学習関連:教科書等の入れ替えで同じ本棚を使用 ・部活道具:棚4〜5段×2 |
| 高校生(16〜18歳) | ・衣服:幅90〜120cm+棚3〜4段の衣服入れが必要 ・学習関連:参考書・問題集が大幅増で本棚追加 ・部活道具:棚4〜5段×2 |
男女で服のデザイン・持ち物のサイズを分けて考える必要がない場合もありますが、ワンピースのような丈の長い服を好む女の子であれば、小学校低学年から持ち物のサイズが大きく変化します。(ハンガーパイプは、最低高さ100cm〜)
確保するべき収納容量は男の子同様に変化していきますが、女の子はメイク道具や小物の量が増加していく傾向があるため、デスク周りの引き出し収納が充実していると、整理整頓を促しやすくなります。
男の子・女の子ともに成長を見据えて大人サイズのクローゼット・収納棚を設けておく方法もありますが、幼少期はハンガーパイプに手が届かないため、片付けを促すのが難しいですよね。
新築時に工務店へ「可動式レールの設置を依頼する」など、お子さまの成長に応じてハンガーパイプや収納棚の高さを変えられる工夫をしておくと便利です。

子ども部屋の配置などを確認してきましたが、ここで「子ども部屋はいつか使わなくなる」という点が気になっている方もいらっしゃると思います。
子ども部屋は、お子さまの独立後に以下のように活用可能です。
栃木で子育て期間から老後まで、利便性・快適性が高い間取りをご希望の方は、第一住宅へご相談ください。




最後に、子ども部屋の配置についてお悩みの方から、第一住宅がよくいただく質問・回答をご紹介します。
A.リビングを通って子ども部屋に出入りする間取りは、ご家族がコミュニケーションを取りやすい反面、「来客時に来訪者と顔を合わせる間取りになりやすい」などのデメリットもあります。
リビングを通って子ども部屋に出入りする間取りにするかどうかは、ご家族の価値観・ライフスタイルに応じた選択が必要です。
A.子ども部屋が必要な年齢もご家族ごとに価値観が異なりますが、「小学校や中学校の入学前後」をお子さまが個室を持つ区切りとするのが一般的です。
また、小学校中〜高学年ころから、お子さま自身が個室の必要性を感じるようになる場面が増えていきます。
A.子ども部屋の間仕切り壁を後から設置する費用の相場は、以下のとおりです。
| 工事内容 | 費用相場 |
|---|---|
| アコーディオンカーテン・パネルドアなど簡易的な間仕切り (大規模な工事不要で取り外しも可能) | 2.5〜10万円 |
| 壁を設置 | 8〜25万円 |
| 壁・ドア・コンセント増設・エアコン取り付け | 25〜50万円 |
※費用は工事内容によって変動するため、詳しい費用は間仕切りの設置を依頼する施工業者へご確認ください。
子ども部屋の配置・面積・部屋のレイアウトなどについて、事例などをご紹介してきました。
子ども部屋の配置などは、「現段階の子育てに便利」「お子さまが成長しても対応できる」両方を考慮して決定する必要があります。
今回の情報を、ご家族が円滑なコミュニケーションを取りながらのびのびと暮らせるマイホームプランに活用していただけると幸いです。